マイキャッスル久地(神奈川県 川崎市多摩区)
マイキャッスル久地掲載開始のお知らせ、ご希望条件の新着物件など、最新情報をお知らせいたします!
マイキャッスル久地は掲載が終了しております
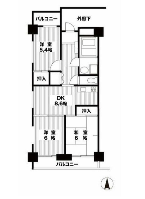
神奈川県 川崎市多摩区にあるマイキャッスル久地の不動産詳細情報
| 参考査定価格 |
1,505万円〜2,224万円 (坪単価:111〜126万円/坪) |
|---|---|
| 住所 | 神奈川県川崎市多摩区堰三丁目17-3 |
| 築年月 | 築30年 |
| 共用施設 |
RC構造 / TVモニター付きインターホン / ガーデン / 宅配ボックス / 駐車場あり / 駐輪場あり
|
| 部屋の基本設備 |
ペット相談可 / ルーフバルコニー / バス、トイレ別 / インターネット利用可
|
マイキャッスル久地にそっくりな物件はこちら
川崎市多摩区の賃貸物件をお探しの方はこちら
川崎市多摩区の不動産会社一覧
理想の物件が見つからない方へ
理想の住まい探し、プロにまかせてみませんか?
・希望条件の物件が見つからない・ローンはどう組めばいいの?など
あなたのお悩みまるっと無料で相談に乗らせていただきます。
物件の売却を検討されている方へ
会員登録のご案内
新着物件・条件に合う物件をメールでお知らせします!
不動産会社のご担当社様へ
物件掲載随時受付中です。
掲載ご希望の方は、こちらよりお問い合わせください。
掲載ご希望の方は、こちらよりお問い合わせください。
東京都の市区町村から探す SEARCH BY CITIES
- 横浜市鶴見区
- 横浜市神奈川区
- 横浜市西区
- 横浜市中区
- 横浜市南区
- 横浜市保土ケ谷区
- 横浜市磯子区
- 横浜市金沢区
- 横浜市港北区
- 横浜市戸塚区
- 横浜市港南区
- 横浜市旭区
- 横浜市緑区
- 横浜市瀬谷区
- 横浜市栄区
- 横浜市泉区
- 横浜市青葉区
- 横浜市都筑区
- 川崎市川崎区
- 川崎市幸区
- 川崎市中原区
- 川崎市高津区
- 川崎市多摩区
- 川崎市宮前区
- 川崎市麻生区
- 相模原市緑区
- 相模原市中央区
- 相模原市南区
- 横須賀市
- 平塚市
- 鎌倉市
- 藤沢市
- 小田原市
- 茅ヶ崎市
- 逗子市
- 三浦市
- 秦野市
- 厚木市
- 大和市
- 伊勢原市
- 海老名市
- 座間市
- 南足柄市
- 綾瀬市
- 三浦郡葉山町
- 高座郡寒川町
- 中郡大磯町
- 中郡二宮町
- 足柄上郡中井町
- 足柄上郡大井町
- 足柄上郡松田町
- 足柄上郡山北町
- 足柄上郡開成町
- 足柄下郡箱根町
- 足柄下郡真鶴町
- 足柄下郡湯河原町
- 愛甲郡愛川町
- 愛甲郡清川村