モンフェリーチェ(東京都 文京区)
モンフェリーチェ掲載開始のお知らせ、ご希望条件の新着物件など、最新情報をお知らせいたします!
モンフェリーチェは掲載が終了しております
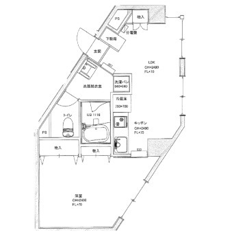
東京都 文京区にあるモンフェリーチェの不動産詳細情報
| 参考査定価格 |
1,419万円〜2,224万円 (坪単価:218〜223万円/坪) |
|---|---|
| 住所 | 東京都文京区水道二丁目1-19 |
| アクセス |
有楽町線江戸川橋駅 徒歩8分 有楽町線神楽坂駅 徒歩10分 |
| 築年月 | 1999年01月(築19年) |
| 共用施設 |
RC構造 / TVモニター付きインターホン / エレベーター / 駐輪場あり
|
| 部屋の基本設備 |
インターネット利用可 / オートロック / バス、トイレ別 / ルーフバルコニー / エアコン完備
|
| 参考査定価格 |
|
モンフェリーチェにそっくりな物件はこちら
文京区の賃貸物件をお探しの方はこちら
文京区の不動産会社一覧
理想の物件が見つからない方へ
理想の住まい探し、プロにまかせてみませんか?
・希望条件の物件が見つからない・ローンはどう組めばいいの?など
あなたのお悩みまるっと無料で相談に乗らせていただきます。
物件の売却を検討されている方へ
会員登録のご案内
新着物件・条件に合う物件をメールでお知らせします!
不動産会社のご担当社様へ
物件掲載随時受付中です。
掲載ご希望の方は、こちらよりお問い合わせください。
掲載ご希望の方は、こちらよりお問い合わせください。