ハイツ錦織(東京都 新宿区)
ハイツ錦織掲載開始のお知らせ、ご希望条件の新着物件など、最新情報をお知らせいたします!
ハイツ錦織は掲載が終了しております
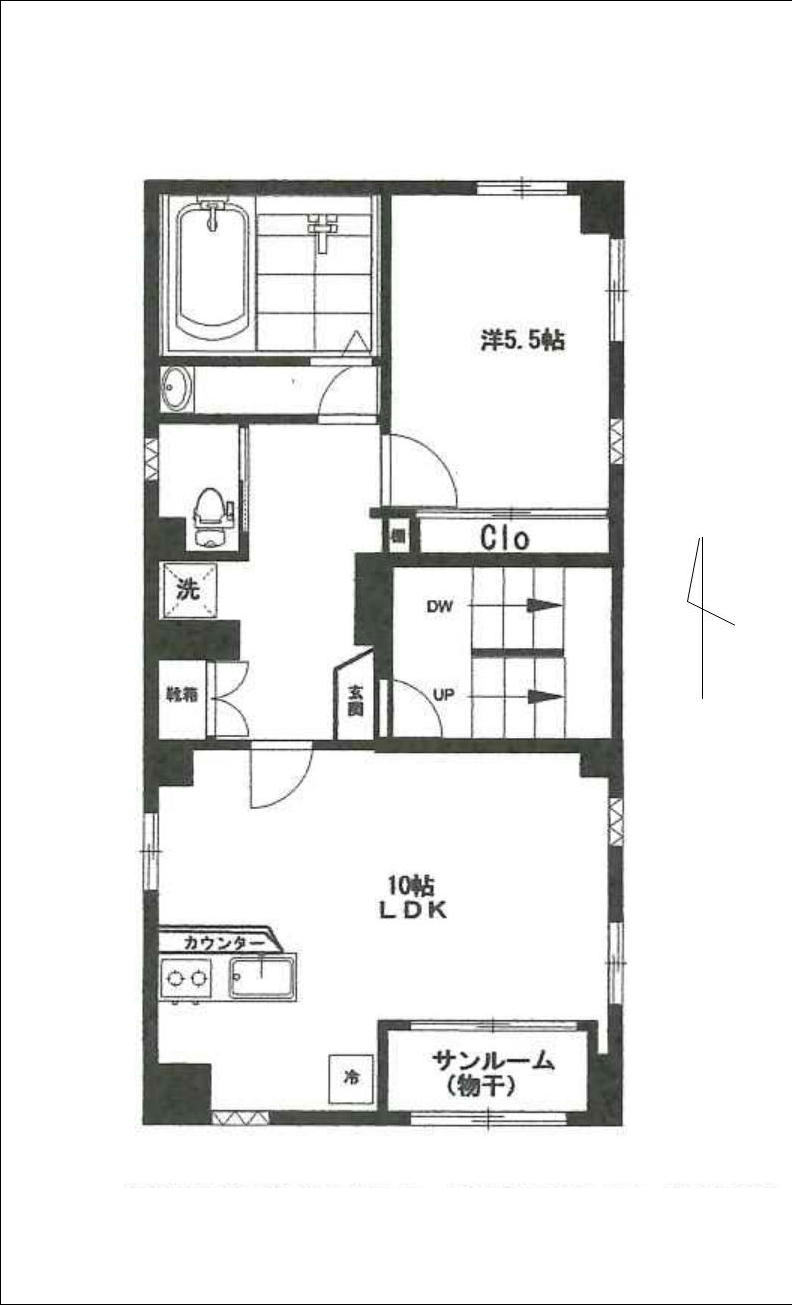
東京都 新宿区にあるハイツ錦織の不動産詳細情報
| 参考査定価格 |
1,275万円 (坪単価:167万円/坪) |
|---|---|
| 住所 | 東京都新宿区西新宿五丁目21-13 |
| アクセス |
都営大江戸線西新宿五丁目駅 徒歩4分 都営大江戸線中野坂上駅 徒歩8分 都営大江戸線都庁前駅 徒歩10分 都営大江戸線西新宿駅 徒歩10分 |
| 築年月 | 1995年09月(築22年) |
| 共用施設 |
駐輪場あり
|
| 部屋の基本設備 |
インターネット利用可 / バス、トイレ別 / ルーフバルコニー
|
| 参考査定価格 |
|
ハイツ錦織にそっくりな物件はこちら
新宿区の賃貸物件をお探しの方はこちら
新宿区の不動産会社一覧
理想の物件が見つからない方へ
理想の住まい探し、プロにまかせてみませんか?
・希望条件の物件が見つからない・ローンはどう組めばいいの?など
あなたのお悩みまるっと無料で相談に乗らせていただきます。
物件の売却を検討されている方へ
会員登録のご案内
新着物件・条件に合う物件をメールでお知らせします!
不動産会社のご担当社様へ
物件掲載随時受付中です。
掲載ご希望の方は、こちらよりお問い合わせください。
掲載ご希望の方は、こちらよりお問い合わせください。