コスモ高輪シティフォルム(東京都 港区)
コスモ高輪シティフォルム掲載開始のお知らせ、ご希望条件の新着物件など、最新情報をお知らせいたします!
コスモ高輪シティフォルムは掲載が終了しております
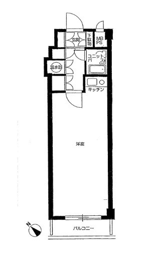
東京都 港区にあるコスモ高輪シティフォルムの不動産詳細情報
| 参考査定価格 |
4,555万円〜6,379万円 (坪単価:231〜310万円/坪) |
|---|---|
| 住所 | 東京都港区高輪一丁目4-23 |
| アクセス |
南北線白金高輪駅 徒歩2分 南北線泉岳寺駅 徒歩9分 |
| 築年月 | 2001年02月(築16年) |
| 共用施設 |
エレベーター / 駐車場あり
|
| 部屋の基本設備 |
インターネット利用可 / 床暖房 / 浴室乾燥機
|
| 参考査定価格 |
|
コスモ高輪シティフォルムにそっくりな物件はこちら
港区の賃貸物件をお探しの方はこちら
港区の不動産会社一覧
理想の物件が見つからない方へ
理想の住まい探し、プロにまかせてみませんか?
・希望条件の物件が見つからない・ローンはどう組めばいいの?など
あなたのお悩みまるっと無料で相談に乗らせていただきます。
物件の売却を検討されている方へ
会員登録のご案内
新着物件・条件に合う物件をメールでお知らせします!
不動産会社のご担当社様へ
物件掲載随時受付中です。
掲載ご希望の方は、こちらよりお問い合わせください。
掲載ご希望の方は、こちらよりお問い合わせください。