レオネクスト千代(東京都 新宿区)
レオネクスト千代掲載開始のお知らせ、ご希望条件の新着物件など、最新情報をお知らせいたします!
レオネクスト千代は掲載が終了しております
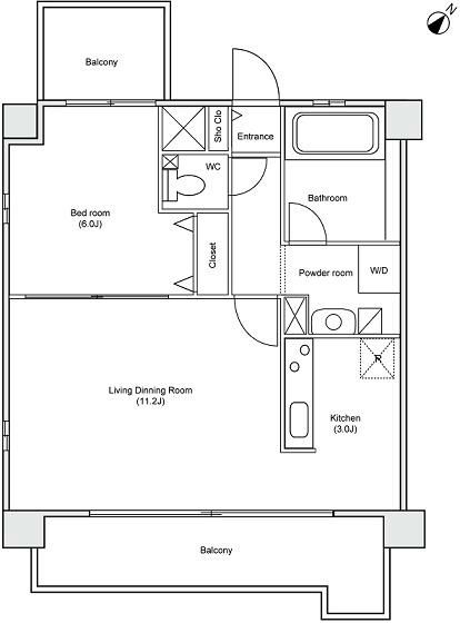
東京都 新宿区にあるレオネクスト千代の不動産詳細情報
| 住所 | 東京都新宿区早稲田南町17 |
|---|---|
| アクセス |
東西線早稲田駅 徒歩5分 東西線牛込柳町駅 徒歩6分 東西線若松河田駅 徒歩10分 |
| 築年月 | 2011年08月(築6年) |
レオネクスト千代にそっくりな物件はこちら
新宿区の賃貸物件をお探しの方はこちら
新宿区の不動産会社一覧
理想の物件が見つからない方へ
理想の住まい探し、プロにまかせてみませんか?
・希望条件の物件が見つからない・ローンはどう組めばいいの?など
あなたのお悩みまるっと無料で相談に乗らせていただきます。
物件の売却を検討されている方へ
会員登録のご案内
新着物件・条件に合う物件をメールでお知らせします!
不動産会社のご担当社様へ
物件掲載随時受付中です。
掲載ご希望の方は、こちらよりお問い合わせください。
掲載ご希望の方は、こちらよりお問い合わせください。