ホワイトハイムL(東京都 東大和市)
ホワイトハイムL掲載開始のお知らせ、ご希望条件の新着物件など、最新情報をお知らせいたします!
ホワイトハイムLは掲載が終了しております
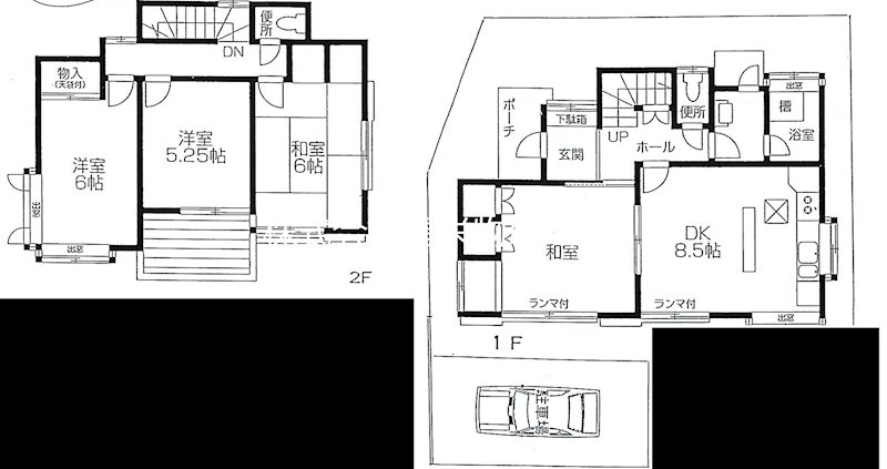
東京都 東大和市にあるホワイトハイムLの不動産詳細情報
| 住所 | 東京都東大和市南街六丁目1-18 |
|---|---|
| アクセス |
西武拝島線東大和市駅 徒歩8分 |
| 築年月 | 1987年03月(築30年) |
ホワイトハイムLにそっくりな物件はこちら
東大和市の賃貸物件をお探しの方はこちら
東大和市の不動産会社一覧
理想の物件が見つからない方へ
理想の住まい探し、プロにまかせてみませんか?
・希望条件の物件が見つからない・ローンはどう組めばいいの?など
あなたのお悩みまるっと無料で相談に乗らせていただきます。
物件の売却を検討されている方へ
会員登録のご案内
新着物件・条件に合う物件をメールでお知らせします!
不動産会社のご担当社様へ
物件掲載随時受付中です。
掲載ご希望の方は、こちらよりお問い合わせください。
掲載ご希望の方は、こちらよりお問い合わせください。