シュロス氷川台さくらレジデンス(東京都 練馬区)
シュロス氷川台さくらレジデンス掲載開始のお知らせ、ご希望条件の新着物件など、最新情報をお知らせいたします!
シュロス氷川台さくらレジデンスは掲載が終了しております
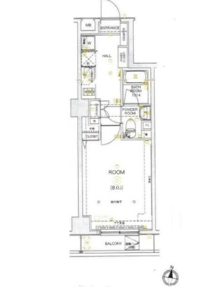
東京都 練馬区にあるシュロス氷川台さくらレジデンスの不動産詳細情報
| 住所 | 東京都練馬区羽沢三丁目28-5 |
|---|---|
| アクセス |
有楽町線氷川台駅 徒歩7分 |
| 築年月 | 2012年09月(築5年) |
シュロス氷川台さくらレジデンスにそっくりな物件はこちら
練馬区の賃貸物件をお探しの方はこちら
練馬区の不動産会社一覧
理想の物件が見つからない方へ
理想の住まい探し、プロにまかせてみませんか?
・希望条件の物件が見つからない・ローンはどう組めばいいの?など
あなたのお悩みまるっと無料で相談に乗らせていただきます。
物件の売却を検討されている方へ
会員登録のご案内
新着物件・条件に合う物件をメールでお知らせします!
不動産会社のご担当社様へ
物件掲載随時受付中です。
掲載ご希望の方は、こちらよりお問い合わせください。
掲載ご希望の方は、こちらよりお問い合わせください。