第2エントピアコート麻布(東京都 港区)
第2エントピアコート麻布掲載開始のお知らせ、ご希望条件の新着物件など、最新情報をお知らせいたします!
第2エントピアコート麻布は掲載が終了しております
東京都 港区にある第2エントピアコート麻布の不動産詳細情報
| 参考査定価格 |
1,536万円〜2,421万円 (坪単価:253〜278万円/坪) |
|---|---|
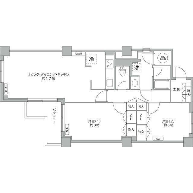
| 住所 | 東京都港区南麻布二丁目6-19 |
| アクセス |
南北線麻布十番駅 徒歩8分 南北線白金高輪駅 徒歩10分 |
| 築年月 | 1985年04月(築32年) |
| 共用施設 |
RC構造
|
| 部屋の基本設備 |
システムキッチン / ペット相談可 / ルーフバルコニー
|
| 参考査定価格 |
|
第2エントピアコート麻布にそっくりな物件はこちら
港区の賃貸物件をお探しの方はこちら
港区の不動産会社一覧
理想の物件が見つからない方へ
理想の住まい探し、プロにまかせてみませんか?
・希望条件の物件が見つからない・ローンはどう組めばいいの?など
あなたのお悩みまるっと無料で相談に乗らせていただきます。
物件の売却を検討されている方へ
会員登録のご案内
新着物件・条件に合う物件をメールでお知らせします!
不動産会社のご担当社様へ
物件掲載随時受付中です。
掲載ご希望の方は、こちらよりお問い合わせください。
掲載ご希望の方は、こちらよりお問い合わせください。