アーバンハイム高円寺(東京都 杉並区)
アーバンハイム高円寺掲載開始のお知らせ、ご希望条件の新着物件など、最新情報をお知らせいたします!
アーバンハイム高円寺は掲載が終了しております
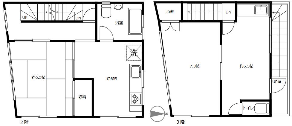
東京都 杉並区にあるアーバンハイム高円寺の不動産詳細情報
| 住所 | 東京都杉並区高円寺南二丁目43-20 |
|---|---|
| アクセス |
丸ノ内線新高円寺駅 徒歩6分 丸ノ内線高円寺駅 徒歩6分 丸ノ内線東高円寺駅 徒歩10分 |
| 築年月 | 1991年04月(築26年) |
アーバンハイム高円寺にそっくりな物件はこちら
杉並区の賃貸物件をお探しの方はこちら
理想の物件が見つからない方へ
理想の住まい探し、プロにまかせてみませんか?
・希望条件の物件が見つからない・ローンはどう組めばいいの?など
あなたのお悩みまるっと無料で相談に乗らせていただきます。
物件の売却を検討されている方へ
会員登録のご案内
新着物件・条件に合う物件をメールでお知らせします!
不動産会社のご担当社様へ
物件掲載随時受付中です。
掲載ご希望の方は、こちらよりお問い合わせください。
掲載ご希望の方は、こちらよりお問い合わせください。