サクラステージネリマ(東京都 練馬区)
サクラステージネリマ掲載開始のお知らせ、ご希望条件の新着物件など、最新情報をお知らせいたします!
サクラステージネリマは掲載が終了しております
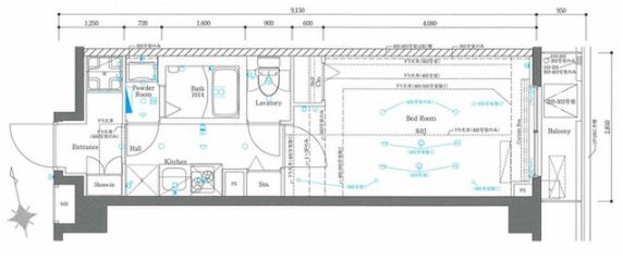
東京都 練馬区にあるサクラステージネリマの不動産詳細情報
| 住所 | 東京都練馬区豊玉上二丁目24-4 |
|---|---|
| アクセス |
西武池袋線桜台駅 徒歩4分 西武池袋線練馬駅 徒歩6分 |
| 築年月 | 2008年09月(築9年) |
サクラステージネリマにそっくりな物件はこちら
練馬区の賃貸物件をお探しの方はこちら
練馬区の不動産会社一覧
理想の物件が見つからない方へ
理想の住まい探し、プロにまかせてみませんか?
・希望条件の物件が見つからない・ローンはどう組めばいいの?など
あなたのお悩みまるっと無料で相談に乗らせていただきます。
物件の売却を検討されている方へ
会員登録のご案内
新着物件・条件に合う物件をメールでお知らせします!
不動産会社のご担当社様へ
物件掲載随時受付中です。
掲載ご希望の方は、こちらよりお問い合わせください。
掲載ご希望の方は、こちらよりお問い合わせください。