ウィルローズ日本橋浜町Sui(東京都 中央区)
ウィルローズ日本橋浜町Sui掲載開始のお知らせ、ご希望条件の新着物件など、最新情報をお知らせいたします!
ウィルローズ日本橋浜町Suiは掲載が終了しております
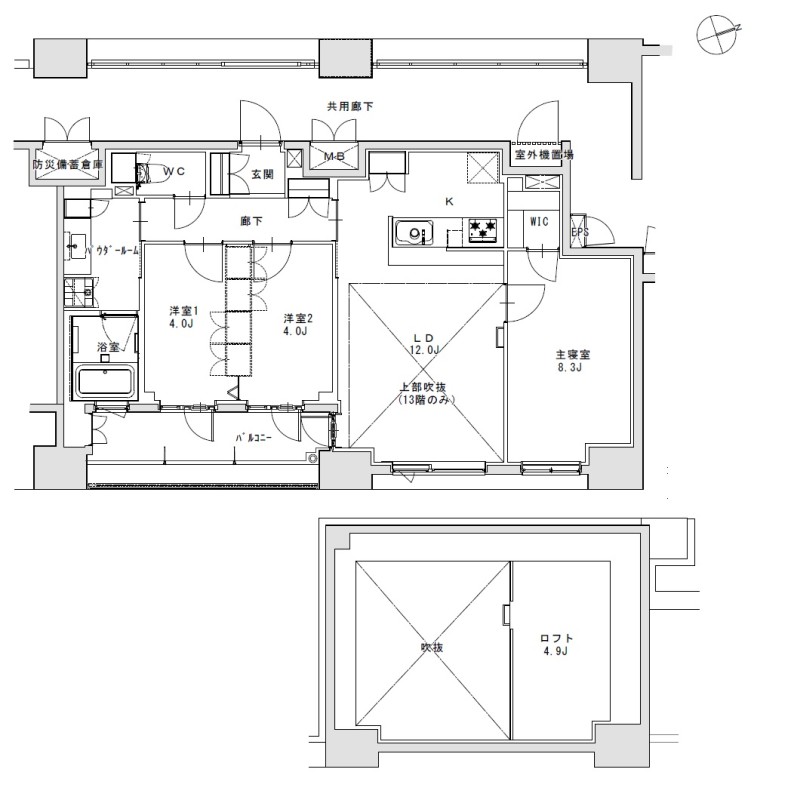
東京都 中央区にあるウィルローズ日本橋浜町Suiの不動産詳細情報
| 参考査定価格 |
3,380万円〜4,860万円 (坪単価:263〜281万円/坪) |
|---|---|
| 住所 | 東京都中央区日本橋浜町三丁目24-5 |
| アクセス |
都営新宿線浜町駅 徒歩5分 都営新宿線水天宮前駅 徒歩7分 都営新宿線人形町駅 徒歩9分 都営新宿線森下駅 徒歩10分 |
| 築年月 | 2010年05月(築7年) |
| 共用施設 |
RC構造 / TVモニター付きインターホン / エレベーター / エントランス / 駐車場あり / 防犯カメラ
|
| 部屋の基本設備 |
インターネット利用可 / 温水洗浄便座 / ペット相談可
|
| 参考査定価格 |
|
ウィルローズ日本橋浜町Suiにそっくりな物件はこちら
中央区の賃貸物件をお探しの方はこちら
中央区の不動産会社一覧
理想の物件が見つからない方へ
理想の住まい探し、プロにまかせてみませんか?
・希望条件の物件が見つからない・ローンはどう組めばいいの?など
あなたのお悩みまるっと無料で相談に乗らせていただきます。
物件の売却を検討されている方へ
会員登録のご案内
新着物件・条件に合う物件をメールでお知らせします!
不動産会社のご担当社様へ
物件掲載随時受付中です。
掲載ご希望の方は、こちらよりお問い合わせください。
掲載ご希望の方は、こちらよりお問い合わせください。