ベルセゾン(東京都 板橋区)
ベルセゾン掲載開始のお知らせ、ご希望条件の新着物件など、最新情報をお知らせいたします!
ベルセゾンは掲載が終了しております
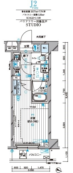
東京都 板橋区にあるベルセゾンの不動産詳細情報
| 住所 | 東京都板橋区坂下一丁目20-11 |
|---|---|
| アクセス |
都営三田線志村三丁目駅 徒歩5分 都営三田線蓮根駅 徒歩10分 |
| 築年月 | 2002年05月(築15年) |
ベルセゾンにそっくりな物件はこちら
板橋区の賃貸物件をお探しの方はこちら
理想の物件が見つからない方へ
理想の住まい探し、プロにまかせてみませんか?
・希望条件の物件が見つからない・ローンはどう組めばいいの?など
あなたのお悩みまるっと無料で相談に乗らせていただきます。
物件の売却を検討されている方へ
会員登録のご案内
新着物件・条件に合う物件をメールでお知らせします!
不動産会社のご担当社様へ
物件掲載随時受付中です。
掲載ご希望の方は、こちらよりお問い合わせください。
掲載ご希望の方は、こちらよりお問い合わせください。