ヴァンヴェールS(東京都 文京区)
ヴァンヴェールS掲載開始のお知らせ、ご希望条件の新着物件など、最新情報をお知らせいたします!
ヴァンヴェールSは掲載が終了しております
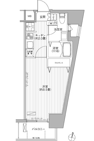
東京都 文京区にあるヴァンヴェールSの不動産詳細情報
| 住所 | 東京都文京区大塚六丁目35-9 |
|---|---|
| アクセス |
有楽町線東池袋駅 徒歩5分 有楽町線向原駅 徒歩6分 有楽町線都電雑司ヶ谷駅 徒歩7分 有楽町線新大塚駅 徒歩8分 有楽町線護国寺駅 徒歩10分 |
| 築年月 | 1963年08月(築54年) |
ヴァンヴェールSにそっくりな物件はこちら
文京区の賃貸物件をお探しの方はこちら
文京区の不動産会社一覧
理想の物件が見つからない方へ
理想の住まい探し、プロにまかせてみませんか?
・希望条件の物件が見つからない・ローンはどう組めばいいの?など
あなたのお悩みまるっと無料で相談に乗らせていただきます。
物件の売却を検討されている方へ
会員登録のご案内
新着物件・条件に合う物件をメールでお知らせします!
不動産会社のご担当社様へ
物件掲載随時受付中です。
掲載ご希望の方は、こちらよりお問い合わせください。
掲載ご希望の方は、こちらよりお問い合わせください。