グレース目黒(東京都 目黒区)
グレース目黒掲載開始のお知らせ、ご希望条件の新着物件など、最新情報をお知らせいたします!
グレース目黒は掲載が終了しております
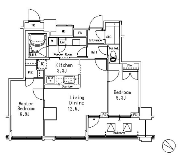
東京都 目黒区にあるグレース目黒の不動産詳細情報
| 参考査定価格 |
2,190万円〜2,692万円 (坪単価:181〜186万円/坪) |
|---|---|
| 住所 | 東京都目黒区目黒本町三丁目19-18 |
| アクセス |
東急目黒線武蔵小山駅 徒歩10分 |
| 築年月 | 1987年03月(築30年) |
| 共用施設 |
RC構造 / 駐車場あり / 駐輪場あり
|
| 部屋の基本設備 |
バス、トイレ別 / ルーフバルコニー
|
| 参考査定価格 |
|
グレース目黒にそっくりな物件はこちら
目黒区の賃貸物件をお探しの方はこちら
目黒区の不動産会社一覧
理想の物件が見つからない方へ
理想の住まい探し、プロにまかせてみませんか?
・希望条件の物件が見つからない・ローンはどう組めばいいの?など
あなたのお悩みまるっと無料で相談に乗らせていただきます。
物件の売却を検討されている方へ
会員登録のご案内
新着物件・条件に合う物件をメールでお知らせします!
不動産会社のご担当社様へ
物件掲載随時受付中です。
掲載ご希望の方は、こちらよりお問い合わせください。
掲載ご希望の方は、こちらよりお問い合わせください。