ドゥーエ有明イースト(東京都 江東区)
ドゥーエ有明イースト掲載開始のお知らせ、ご希望条件の新着物件など、最新情報をお知らせいたします!
ドゥーエ有明イーストは掲載が終了しております
東京都 江東区にあるドゥーエ有明イーストの不動産詳細情報
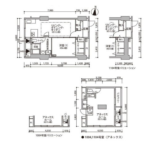
| 住所 | 東京都江東区有明一丁目3-17 |
|---|---|
| アクセス |
新交通ゆりかもめ有明テニスの森駅 徒歩3分 新交通ゆりかもめ国際展示場駅 徒歩7分 新交通ゆりかもめ有明駅 徒歩7分 |
| 築年月 | 2008年10月(築9年) |
ドゥーエ有明イーストにそっくりな物件はこちら
江東区の賃貸物件をお探しの方はこちら
江東区の不動産会社一覧
理想の物件が見つからない方へ
理想の住まい探し、プロにまかせてみませんか?
・希望条件の物件が見つからない・ローンはどう組めばいいの?など
あなたのお悩みまるっと無料で相談に乗らせていただきます。
物件の売却を検討されている方へ
会員登録のご案内
新着物件・条件に合う物件をメールでお知らせします!
不動産会社のご担当社様へ
物件掲載随時受付中です。
掲載ご希望の方は、こちらよりお問い合わせください。
掲載ご希望の方は、こちらよりお問い合わせください。