ダイアパレス元浅草ブライトスクエア(東京都 台東区)
ダイアパレス元浅草ブライトスクエア掲載開始のお知らせ、ご希望条件の新着物件など、最新情報をお知らせいたします!
ダイアパレス元浅草ブライトスクエアは掲載が終了しております
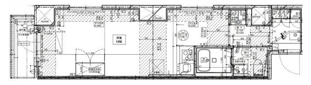
東京都 台東区にあるダイアパレス元浅草ブライトスクエアの不動産詳細情報
| 住所 | 東京都台東区元浅草四丁目1-17 |
|---|---|
| アクセス |
銀座線田原町駅 徒歩4分 銀座線稲荷町駅 徒歩7分 銀座線新御徒町駅 徒歩8分 銀座線浅草駅 徒歩9分 銀座線蔵前駅 徒歩9分 |
| 築年月 | 1996年03月(築21年) |
ダイアパレス元浅草ブライトスクエアにそっくりな物件はこちら
台東区の賃貸物件をお探しの方はこちら
台東区の不動産会社一覧
理想の物件が見つからない方へ
理想の住まい探し、プロにまかせてみませんか?
・希望条件の物件が見つからない・ローンはどう組めばいいの?など
あなたのお悩みまるっと無料で相談に乗らせていただきます。
物件の売却を検討されている方へ
会員登録のご案内
新着物件・条件に合う物件をメールでお知らせします!
不動産会社のご担当社様へ
物件掲載随時受付中です。
掲載ご希望の方は、こちらよりお問い合わせください。
掲載ご希望の方は、こちらよりお問い合わせください。