エクサーブ高輪(東京都 港区)
エクサーブ高輪掲載開始のお知らせ、ご希望条件の新着物件など、最新情報をお知らせいたします!
エクサーブ高輪は掲載が終了しております
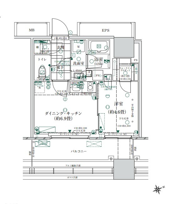
東京都 港区にあるエクサーブ高輪の不動産詳細情報
| 参考査定価格 |
8,191万円〜1億3,267万円 (坪単価:352〜435万円/坪) |
|---|---|
| 住所 | 東京都港区高輪四丁目12-18 |
| アクセス |
東海道本線(東京~熱海)品川駅 徒歩7分 東海道本線(東京~熱海)高輪台駅 徒歩8分 東海道本線(東京~熱海)北品川駅 徒歩9分 |
| 築年月 | 2003年02月(築14年) |
| 共用施設 |
TVモニター付きインターホン / エレベーター / 駐車場あり
|
| 部屋の基本設備 |
BS/CS対応 / 温水洗浄便座 / システムキッチン / 床暖房
|
| 参考査定価格 |
|
エクサーブ高輪にそっくりな物件はこちら
港区の賃貸物件をお探しの方はこちら
港区の不動産会社一覧
理想の物件が見つからない方へ
理想の住まい探し、プロにまかせてみませんか?
・希望条件の物件が見つからない・ローンはどう組めばいいの?など
あなたのお悩みまるっと無料で相談に乗らせていただきます。
物件の売却を検討されている方へ
会員登録のご案内
新着物件・条件に合う物件をメールでお知らせします!
不動産会社のご担当社様へ
物件掲載随時受付中です。
掲載ご希望の方は、こちらよりお問い合わせください。
掲載ご希望の方は、こちらよりお問い合わせください。