サンテラス赤坂(東京都 港区)
サンテラス赤坂掲載開始のお知らせ、ご希望条件の新着物件など、最新情報をお知らせいたします!
サンテラス赤坂は掲載が終了しております
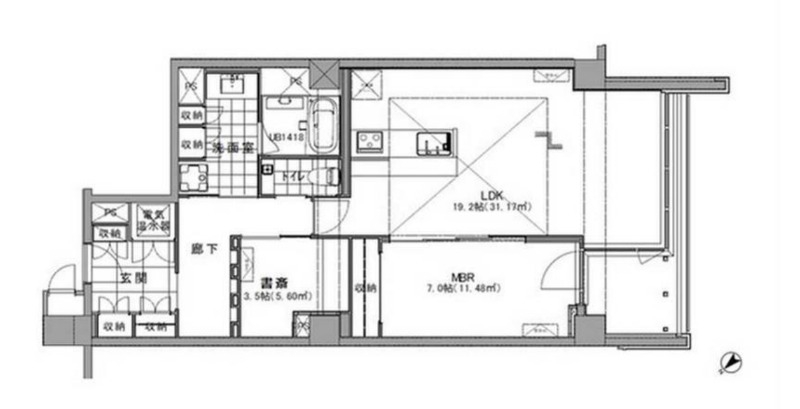
東京都 港区にあるサンテラス赤坂の不動産詳細情報
| 住所 | 東京都港区赤坂二丁目12-32 |
|---|---|
| アクセス |
千代田線赤坂駅 徒歩3分 千代田線溜池山王駅 徒歩4分 千代田線国会議事堂前駅 徒歩8分 千代田線赤坂見附駅 徒歩8分 千代田線六本木一丁目駅 徒歩9分 |
| 築年月 | 1998年03月(築19年) |
サンテラス赤坂にそっくりな物件はこちら
港区の賃貸物件をお探しの方はこちら
港区の不動産会社一覧
理想の物件が見つからない方へ
理想の住まい探し、プロにまかせてみませんか?
・希望条件の物件が見つからない・ローンはどう組めばいいの?など
あなたのお悩みまるっと無料で相談に乗らせていただきます。
物件の売却を検討されている方へ
会員登録のご案内
新着物件・条件に合う物件をメールでお知らせします!
不動産会社のご担当社様へ
物件掲載随時受付中です。
掲載ご希望の方は、こちらよりお問い合わせください。
掲載ご希望の方は、こちらよりお問い合わせください。