トゥシェ新橋(東京都 港区)
トゥシェ新橋掲載開始のお知らせ、ご希望条件の新着物件など、最新情報をお知らせいたします!
トゥシェ新橋は掲載が終了しております
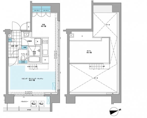
東京都 港区にあるトゥシェ新橋の不動産詳細情報
| 住所 | 東京都港区新橋五丁目6-4 |
|---|---|
| アクセス |
都営三田線御成門駅 徒歩5分 都営三田線新橋駅 徒歩7分 都営三田線汐留駅 徒歩8分 都営三田線内幸町駅 徒歩9分 都営三田線大門駅 徒歩10分 |
| 築年月 | 2004年03月(築13年) |
トゥシェ新橋にそっくりな物件はこちら
港区の賃貸物件をお探しの方はこちら
港区の不動産会社一覧
理想の物件が見つからない方へ
理想の住まい探し、プロにまかせてみませんか?
・希望条件の物件が見つからない・ローンはどう組めばいいの?など
あなたのお悩みまるっと無料で相談に乗らせていただきます。
物件の売却を検討されている方へ
会員登録のご案内
新着物件・条件に合う物件をメールでお知らせします!
不動産会社のご担当社様へ
物件掲載随時受付中です。
掲載ご希望の方は、こちらよりお問い合わせください。
掲載ご希望の方は、こちらよりお問い合わせください。