ヴェラハイツ浜町(東京都 中央区)
ヴェラハイツ浜町掲載開始のお知らせ、ご希望条件の新着物件など、最新情報をお知らせいたします!
ヴェラハイツ浜町は掲載が終了しております
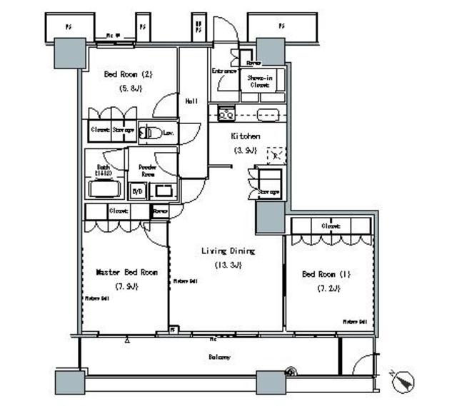
東京都 中央区にあるヴェラハイツ浜町の不動産詳細情報
| 参考査定価格 |
1,002万円〜1,987万円 (坪単価:173〜179万円/坪) |
|---|---|
| 住所 | 東京都中央区日本橋浜町二丁目22-5 |
| アクセス |
都営新宿線浜町駅 徒歩4分 都営新宿線水天宮前駅 徒歩6分 都営新宿線人形町駅 徒歩7分 |
| 築年月 | 1984年12月(築33年) |
| 共用施設 |
TVモニター付きインターホン / 駐輪場あり
|
| 部屋の基本設備 |
BS/CS対応 / インターネット利用可 / ルーフバルコニー
|
| 参考査定価格 |
|
ヴェラハイツ浜町にそっくりな物件はこちら
中央区の賃貸物件をお探しの方はこちら
中央区の不動産会社一覧
理想の物件が見つからない方へ
理想の住まい探し、プロにまかせてみませんか?
・希望条件の物件が見つからない・ローンはどう組めばいいの?など
あなたのお悩みまるっと無料で相談に乗らせていただきます。
物件の売却を検討されている方へ
会員登録のご案内
新着物件・条件に合う物件をメールでお知らせします!
不動産会社のご担当社様へ
物件掲載随時受付中です。
掲載ご希望の方は、こちらよりお問い合わせください。
掲載ご希望の方は、こちらよりお問い合わせください。