アコード(東京都 八王子市)
アコード掲載開始のお知らせ、ご希望条件の新着物件など、最新情報をお知らせいたします!
アコードは掲載が終了しております
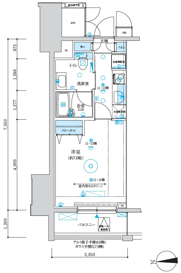
東京都 八王子市にあるアコードの不動産詳細情報
| 参考査定価格 |
1,688万円〜1,841万円 (坪単価:134〜139万円/坪) |
|---|---|
| 住所 | 東京都八王子市散田町三丁目9-17 |
| アクセス |
中央本線(東京~塩尻)西八王子駅 徒歩2分 |
| 築年月 | 2012年07月(築5年) |
| 共用施設 |
TVモニター付きインターホン
|
| 部屋の基本設備 |
バス、トイレ別 / エアコン完備 / 追い焚き機能付き浴槽 / システムキッチン / 温水洗浄便座 / ルーフバルコニー / インターネット利用可 / オートロック / 浴室乾燥機
|
アコードにそっくりな物件はこちら
八王子市の賃貸物件をお探しの方はこちら
八王子市の不動産会社一覧
理想の物件が見つからない方へ
理想の住まい探し、プロにまかせてみませんか?
・希望条件の物件が見つからない・ローンはどう組めばいいの?など
あなたのお悩みまるっと無料で相談に乗らせていただきます。
物件の売却を検討されている方へ
会員登録のご案内
新着物件・条件に合う物件をメールでお知らせします!
不動産会社のご担当社様へ
物件掲載随時受付中です。
掲載ご希望の方は、こちらよりお問い合わせください。
掲載ご希望の方は、こちらよりお問い合わせください。