レオパレスネオライフ江古田II(東京都 中野区)
レオパレスネオライフ江古田II掲載開始のお知らせ、ご希望条件の新着物件など、最新情報をお知らせいたします!
レオパレスネオライフ江古田IIは掲載が終了しております
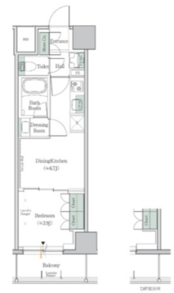
東京都 中野区にあるレオパレスネオライフ江古田IIの不動産詳細情報
| 住所 | 東京都中野区江古田一丁目24-2 |
|---|---|
| アクセス |
都営大江戸線新江古田駅 徒歩9分 |
| 築年月 | 2012年04月(築5年) |
レオパレスネオライフ江古田IIにそっくりな物件はこちら
中野区の賃貸物件をお探しの方はこちら
理想の物件が見つからない方へ
理想の住まい探し、プロにまかせてみませんか?
・希望条件の物件が見つからない・ローンはどう組めばいいの?など
あなたのお悩みまるっと無料で相談に乗らせていただきます。
物件の売却を検討されている方へ
会員登録のご案内
新着物件・条件に合う物件をメールでお知らせします!
不動産会社のご担当社様へ
物件掲載随時受付中です。
掲載ご希望の方は、こちらよりお問い合わせください。
掲載ご希望の方は、こちらよりお問い合わせください。