サンフレールA(東京都 世田谷区)
サンフレールA掲載開始のお知らせ、ご希望条件の新着物件など、最新情報をお知らせいたします!
サンフレールAは掲載が終了しております
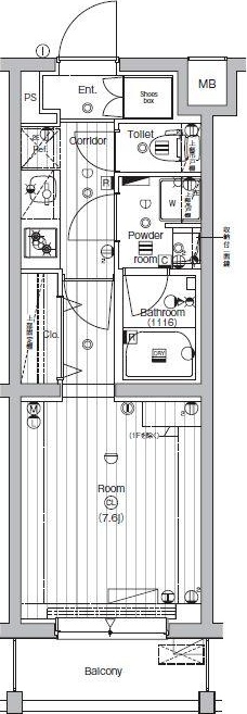
東京都 世田谷区にあるサンフレールAの不動産詳細情報
| 参考査定価格 |
2,866万円〜3,165万円 (坪単価:167〜188万円/坪) |
|---|---|
| 住所 | 東京都世田谷区経堂一丁目23-5 |
| アクセス |
小田急小田原線経堂駅 徒歩2分 |
| 築年月 | 1995年07月(築22年) |
| 共用施設 |
駐車場あり / 駐輪場あり
|
| 部屋の基本設備 |
BS/CS対応 / インターネット利用可 / オートロック / バス、トイレ別 / ルーフバルコニー
|
サンフレールAにそっくりな物件はこちら
世田谷区の賃貸物件をお探しの方はこちら
世田谷区の不動産会社一覧
理想の物件が見つからない方へ
理想の住まい探し、プロにまかせてみませんか?
・希望条件の物件が見つからない・ローンはどう組めばいいの?など
あなたのお悩みまるっと無料で相談に乗らせていただきます。
物件の売却を検討されている方へ
会員登録のご案内
新着物件・条件に合う物件をメールでお知らせします!
不動産会社のご担当社様へ
物件掲載随時受付中です。
掲載ご希望の方は、こちらよりお問い合わせください。
掲載ご希望の方は、こちらよりお問い合わせください。