トーシンフェニックス神田岩本町棟名壱番館(東京都 千代田区)
トーシンフェニックス神田岩本町棟名壱番館掲載開始のお知らせ、ご希望条件の新着物件など、最新情報をお知らせいたします!
トーシンフェニックス神田岩本町棟名壱番館は掲載が終了しております
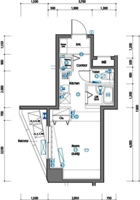
東京都 千代田区にあるトーシンフェニックス神田岩本町棟名壱番館の不動産詳細情報
| 参考査定価格 |
1,928万円〜5,087万円 (坪単価:282〜335万円/坪) |
|---|---|
| 住所 | 東京都千代田区岩本町二丁目1-11 |
| アクセス |
日比谷線小伝馬町駅 徒歩4分 日比谷線岩本町駅 徒歩4分 日比谷線新日本橋駅 徒歩7分 日比谷線神田駅 徒歩7分 日比谷線馬喰町駅 徒歩8分 日比谷線秋葉原駅 徒歩9分 |
| 築年月 | 2003年05月(築14年) |
| 共用施設 |
エレベーター
|
| 参考査定価格 |
|
トーシンフェニックス神田岩本町棟名壱番館にそっくりな物件はこちら
千代田区の賃貸物件をお探しの方はこちら
千代田区の不動産会社一覧
理想の物件が見つからない方へ
理想の住まい探し、プロにまかせてみませんか?
・希望条件の物件が見つからない・ローンはどう組めばいいの?など
あなたのお悩みまるっと無料で相談に乗らせていただきます。
物件の売却を検討されている方へ
会員登録のご案内
新着物件・条件に合う物件をメールでお知らせします!
不動産会社のご担当社様へ
物件掲載随時受付中です。
掲載ご希望の方は、こちらよりお問い合わせください。
掲載ご希望の方は、こちらよりお問い合わせください。