フォルトゥナ月島(東京都 中央区)
フォルトゥナ月島掲載開始のお知らせ、ご希望条件の新着物件など、最新情報をお知らせいたします!
フォルトゥナ月島は掲載が終了しております
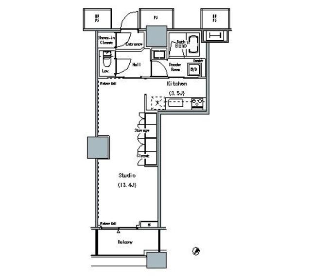
東京都 中央区にあるフォルトゥナ月島の不動産詳細情報
| 参考査定価格 |
1,851万円〜2,396万円 (坪単価:274〜344万円/坪) |
|---|---|
| 住所 | 東京都中央区月島三丁目13-6 |
| アクセス |
有楽町線月島駅 徒歩6分 有楽町線勝どき駅 徒歩7分 |
| 築年月 | 2002年07月(築15年) |
| 共用施設 |
エレベーター
|
| 参考査定価格 |
|
フォルトゥナ月島にそっくりな物件はこちら
中央区の賃貸物件をお探しの方はこちら
中央区の不動産会社一覧
理想の物件が見つからない方へ
理想の住まい探し、プロにまかせてみませんか?
・希望条件の物件が見つからない・ローンはどう組めばいいの?など
あなたのお悩みまるっと無料で相談に乗らせていただきます。
物件の売却を検討されている方へ
会員登録のご案内
新着物件・条件に合う物件をメールでお知らせします!
不動産会社のご担当社様へ
物件掲載随時受付中です。
掲載ご希望の方は、こちらよりお問い合わせください。
掲載ご希望の方は、こちらよりお問い合わせください。