AXAS東京イーストガーデン(東京都 江東区)
AXAS東京イーストガーデン掲載開始のお知らせ、ご希望条件の新着物件など、最新情報をお知らせいたします!
AXAS東京イーストガーデンは掲載が終了しております
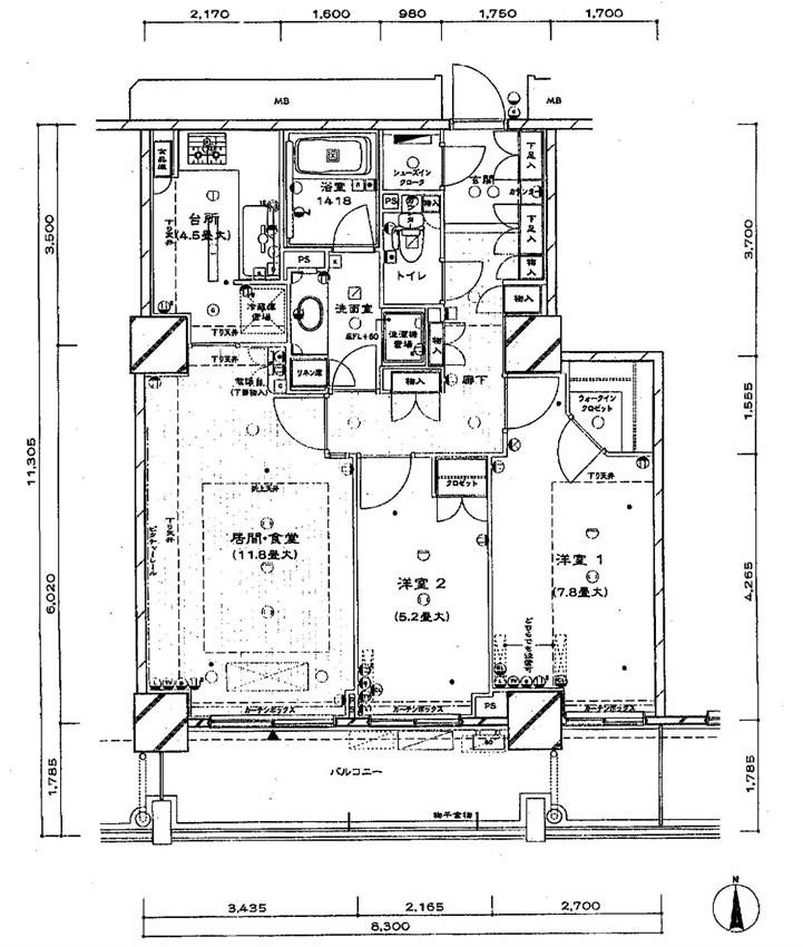
東京都 江東区にあるAXAS東京イーストガーデンの不動産詳細情報
| 住所 | 東京都江東区亀戸六丁目43-5 |
|---|---|
| アクセス |
東武亀戸線亀戸水神駅 徒歩6分 東武亀戸線亀戸駅 徒歩7分 東武亀戸線大島駅 徒歩10分 |
| 築年月 | 2012年06月(築5年) |
AXAS東京イーストガーデンにそっくりな物件はこちら
江東区の賃貸物件をお探しの方はこちら
江東区の不動産会社一覧
理想の物件が見つからない方へ
理想の住まい探し、プロにまかせてみませんか?
・希望条件の物件が見つからない・ローンはどう組めばいいの?など
あなたのお悩みまるっと無料で相談に乗らせていただきます。
物件の売却を検討されている方へ
会員登録のご案内
新着物件・条件に合う物件をメールでお知らせします!
不動産会社のご担当社様へ
物件掲載随時受付中です。
掲載ご希望の方は、こちらよりお問い合わせください。
掲載ご希望の方は、こちらよりお問い合わせください。