サンハウス(東京都 世田谷区)
サンハウス掲載開始のお知らせ、ご希望条件の新着物件など、最新情報をお知らせいたします!
サンハウスは掲載が終了しております
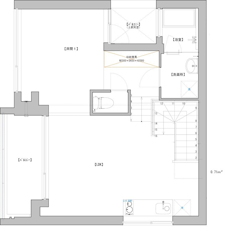
東京都 世田谷区にあるサンハウスの不動産詳細情報
| 住所 | 東京都世田谷区松原四丁目27-2 |
|---|---|
| アクセス |
東急世田谷線松原駅 徒歩3分 東急世田谷線下高井戸駅 徒歩7分 |
| 築年月 | 1983年07月(築34年) |
サンハウスにそっくりな物件はこちら
世田谷区の賃貸物件をお探しの方はこちら
世田谷区の不動産会社一覧
理想の物件が見つからない方へ
理想の住まい探し、プロにまかせてみませんか?
・希望条件の物件が見つからない・ローンはどう組めばいいの?など
あなたのお悩みまるっと無料で相談に乗らせていただきます。
物件の売却を検討されている方へ
会員登録のご案内
新着物件・条件に合う物件をメールでお知らせします!
不動産会社のご担当社様へ
物件掲載随時受付中です。
掲載ご希望の方は、こちらよりお問い合わせください。
掲載ご希望の方は、こちらよりお問い合わせください。