グランドステージ錦糸町棟名弐番館(東京都 墨田区)
グランドステージ錦糸町棟名弐番館掲載開始のお知らせ、ご希望条件の新着物件など、最新情報をお知らせいたします!
グランドステージ錦糸町棟名弐番館は掲載が終了しております
東京都 墨田区にあるグランドステージ錦糸町棟名弐番館の不動産詳細情報
| 参考査定価格 |
5,445万円 (坪単価:199万円/坪) |
|---|---|
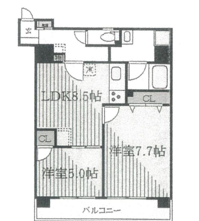
| 住所 | 東京都墨田区太平四丁目24-13 |
| アクセス |
総武線錦糸町駅 徒歩10分 |
| 築年月 | 2003年12月(築14年) |
| 共用施設 |
RC構造 / TVモニター付きインターホン
|
| 部屋の基本設備 |
BS/CS対応 / 追い焚き機能付き浴槽 / オートロック / 温水洗浄便座 / システムキッチン / バス、トイレ別 / エアコン完備
|
| 参考査定価格 |
|
グランドステージ錦糸町棟名弐番館にそっくりな物件はこちら
墨田区の賃貸物件をお探しの方はこちら
理想の物件が見つからない方へ
理想の住まい探し、プロにまかせてみませんか?
・希望条件の物件が見つからない・ローンはどう組めばいいの?など
あなたのお悩みまるっと無料で相談に乗らせていただきます。
物件の売却を検討されている方へ
会員登録のご案内
新着物件・条件に合う物件をメールでお知らせします!
不動産会社のご担当社様へ
物件掲載随時受付中です。
掲載ご希望の方は、こちらよりお問い合わせください。
掲載ご希望の方は、こちらよりお問い合わせください。