ヴァンクール岩本町(東京都 千代田区)
ヴァンクール岩本町掲載開始のお知らせ、ご希望条件の新着物件など、最新情報をお知らせいたします!
ヴァンクール岩本町は掲載が終了しております
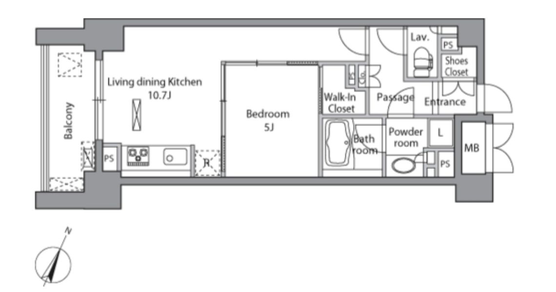
東京都 千代田区にあるヴァンクール岩本町の不動産詳細情報
| 住所 | 東京都千代田区岩本町三丁目4-11 |
|---|---|
| アクセス |
都営新宿線岩本町駅 徒歩2分 都営新宿線小伝馬町駅 徒歩7分 都営新宿線馬喰町駅 徒歩7分 都営新宿線秋葉原駅 徒歩7分 都営新宿線浅草橋駅 徒歩9分 都営新宿線神田駅 徒歩10分 都営新宿線新日本橋駅 徒歩10分 |
| 築年月 | 2016年09月(築1年) |
ヴァンクール岩本町にそっくりな物件はこちら
千代田区の賃貸物件をお探しの方はこちら
千代田区の不動産会社一覧
理想の物件が見つからない方へ
理想の住まい探し、プロにまかせてみませんか?
・希望条件の物件が見つからない・ローンはどう組めばいいの?など
あなたのお悩みまるっと無料で相談に乗らせていただきます。
物件の売却を検討されている方へ
会員登録のご案内
新着物件・条件に合う物件をメールでお知らせします!
不動産会社のご担当社様へ
物件掲載随時受付中です。
掲載ご希望の方は、こちらよりお問い合わせください。
掲載ご希望の方は、こちらよりお問い合わせください。