ハウスフローラ(東京都 八王子市)
ハウスフローラ掲載開始のお知らせ、ご希望条件の新着物件など、最新情報をお知らせいたします!
ハウスフローラは掲載が終了しております
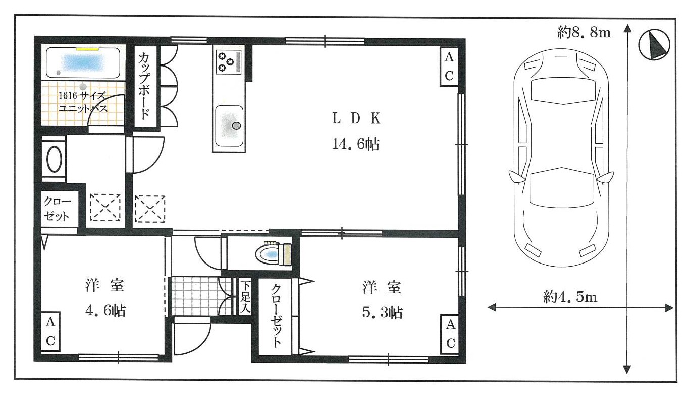
東京都 八王子市にあるハウスフローラの不動産詳細情報
| 参考査定価格 |
1,245万円〜1,249万円 (坪単価:76万円/坪) |
|---|---|
| 住所 | 東京都八王子市明神町二丁目12-18 |
| アクセス |
京王線 京王八王子駅 徒歩4分 京王線八王子駅 徒歩10分 |
| 共用施設 |
駐車場あり / 駐輪場あり / RC構造
|
| 部屋の基本設備 |
ルーフバルコニー / バス、トイレ別
|
ハウスフローラにそっくりな物件はこちら
八王子市の賃貸物件をお探しの方はこちら
八王子市の不動産会社一覧
理想の物件が見つからない方へ
理想の住まい探し、プロにまかせてみませんか?
・希望条件の物件が見つからない・ローンはどう組めばいいの?など
あなたのお悩みまるっと無料で相談に乗らせていただきます。
物件の売却を検討されている方へ
会員登録のご案内
新着物件・条件に合う物件をメールでお知らせします!
不動産会社のご担当社様へ
物件掲載随時受付中です。
掲載ご希望の方は、こちらよりお問い合わせください。
掲載ご希望の方は、こちらよりお問い合わせください。