カームハイツ(東京都 西東京市)
カームハイツ掲載開始のお知らせ、ご希望条件の新着物件など、最新情報をお知らせいたします!
カームハイツは掲載が終了しております
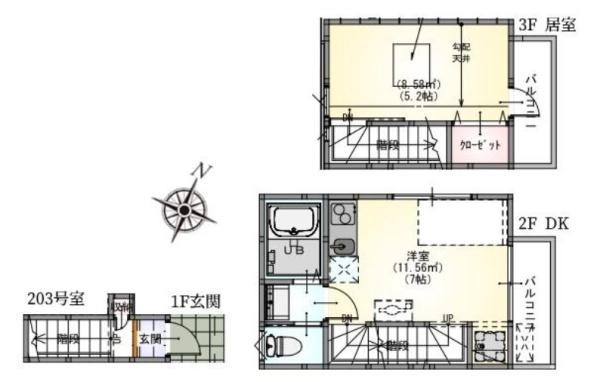
東京都 西東京市にあるカームハイツの不動産詳細情報
| 住所 | 東京都西東京市田無町一丁目4-6 |
|---|---|
| アクセス |
西武新宿線西武柳沢駅 徒歩9分 西武新宿線田無駅 徒歩10分 |
| 築年月 | 1989年11月(築28年) |
カームハイツにそっくりな物件はこちら
西東京市の賃貸物件をお探しの方はこちら
西東京市の不動産会社一覧
理想の物件が見つからない方へ
理想の住まい探し、プロにまかせてみませんか?
・希望条件の物件が見つからない・ローンはどう組めばいいの?など
あなたのお悩みまるっと無料で相談に乗らせていただきます。
物件の売却を検討されている方へ
会員登録のご案内
新着物件・条件に合う物件をメールでお知らせします!
不動産会社のご担当社様へ
物件掲載随時受付中です。
掲載ご希望の方は、こちらよりお問い合わせください。
掲載ご希望の方は、こちらよりお問い合わせください。