アベル北沢(東京都 世田谷区)
アベル北沢掲載開始のお知らせ、ご希望条件の新着物件など、最新情報をお知らせいたします!
アベル北沢は掲載が終了しております
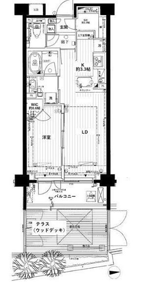
東京都 世田谷区にあるアベル北沢の不動産詳細情報
| 住所 | 東京都世田谷区北沢三丁目 |
|---|---|
| アクセス |
小田急小田原線東北沢駅 徒歩3分 小田急小田原線下北沢駅 徒歩7分 小田急小田原線池ノ上駅 徒歩7分 |
アベル北沢にそっくりな物件はこちら
世田谷区の賃貸物件をお探しの方はこちら
世田谷区の不動産会社一覧
理想の物件が見つからない方へ
理想の住まい探し、プロにまかせてみませんか?
・希望条件の物件が見つからない・ローンはどう組めばいいの?など
あなたのお悩みまるっと無料で相談に乗らせていただきます。
物件の売却を検討されている方へ
会員登録のご案内
新着物件・条件に合う物件をメールでお知らせします!
不動産会社のご担当社様へ
物件掲載随時受付中です。
掲載ご希望の方は、こちらよりお問い合わせください。
掲載ご希望の方は、こちらよりお問い合わせください。