大村荘棟名第3(東京都 足立区)
大村荘棟名第3掲載開始のお知らせ、ご希望条件の新着物件など、最新情報をお知らせいたします!
大村荘棟名第3は掲載が終了しております
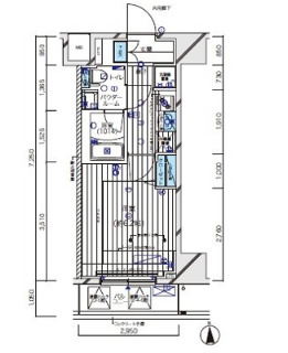
東京都 足立区にある大村荘棟名第3の不動産詳細情報
| 住所 | 東京都足立区六町二丁目3-11 |
|---|---|
| アクセス |
つくばエクスプレス六町駅 徒歩5分 |
| 築年月 | 1971年12月(築46年) |
大村荘棟名第3にそっくりな物件はこちら
足立区の賃貸物件をお探しの方はこちら
理想の物件が見つからない方へ
理想の住まい探し、プロにまかせてみませんか?
・希望条件の物件が見つからない・ローンはどう組めばいいの?など
あなたのお悩みまるっと無料で相談に乗らせていただきます。
物件の売却を検討されている方へ
会員登録のご案内
新着物件・条件に合う物件をメールでお知らせします!
不動産会社のご担当社様へ
物件掲載随時受付中です。
掲載ご希望の方は、こちらよりお問い合わせください。
掲載ご希望の方は、こちらよりお問い合わせください。