アーバンライフ大井町(東京都 品川区)
アーバンライフ大井町掲載開始のお知らせ、ご希望条件の新着物件など、最新情報をお知らせいたします!
アーバンライフ大井町は掲載が終了しております
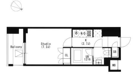
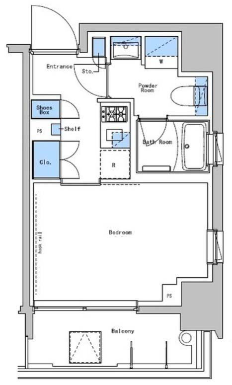
東京都 品川区にあるアーバンライフ大井町の不動産詳細情報
| 住所 | 東京都品川区大井三丁目6-9 |
|---|---|
| アクセス |
京浜東北・根岸線大井町駅 徒歩7分 |
| 築年月 | 2005年05月(築12年) |
アーバンライフ大井町にそっくりな物件はこちら
品川区の賃貸物件をお探しの方はこちら
品川区の不動産会社一覧
理想の物件が見つからない方へ
理想の住まい探し、プロにまかせてみませんか?
・希望条件の物件が見つからない・ローンはどう組めばいいの?など
あなたのお悩みまるっと無料で相談に乗らせていただきます。
物件の売却を検討されている方へ
会員登録のご案内
新着物件・条件に合う物件をメールでお知らせします!
不動産会社のご担当社様へ
物件掲載随時受付中です。
掲載ご希望の方は、こちらよりお問い合わせください。
掲載ご希望の方は、こちらよりお問い合わせください。