ビオトープ(東京都 豊島区)
ビオトープ掲載開始のお知らせ、ご希望条件の新着物件など、最新情報をお知らせいたします!
ビオトープは掲載が終了しております
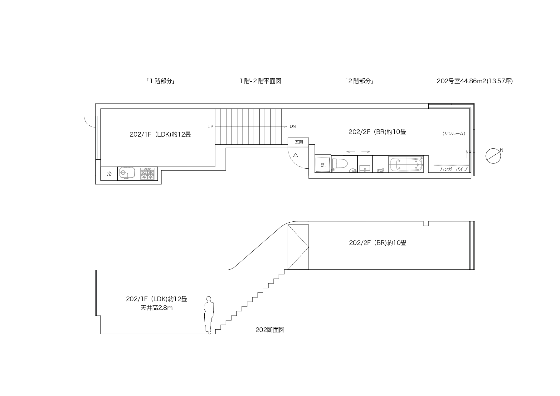
東京都 豊島区にあるビオトープの不動産詳細情報
| 住所 | 東京都豊島区西巣鴨一丁目3-22 |
|---|---|
| アクセス |
都電荒川線巣鴨新田駅 徒歩3分 都電荒川線庚申塚駅 徒歩7分 都電荒川線大塚駅 徒歩8分 都電荒川線新庚申塚駅 徒歩9分 |
| 築年月 | 1968年01月(築50年) |
ビオトープにそっくりな物件はこちら
豊島区の賃貸物件をお探しの方はこちら
理想の物件が見つからない方へ
理想の住まい探し、プロにまかせてみませんか?
・希望条件の物件が見つからない・ローンはどう組めばいいの?など
あなたのお悩みまるっと無料で相談に乗らせていただきます。
物件の売却を検討されている方へ
会員登録のご案内
新着物件・条件に合う物件をメールでお知らせします!
不動産会社のご担当社様へ
物件掲載随時受付中です。
掲載ご希望の方は、こちらよりお問い合わせください。
掲載ご希望の方は、こちらよりお問い合わせください。