レクセルマンション上野松が谷(東京都 台東区)
レクセルマンション上野松が谷掲載開始のお知らせ、ご希望条件の新着物件など、最新情報をお知らせいたします!
レクセルマンション上野松が谷は掲載が終了しております
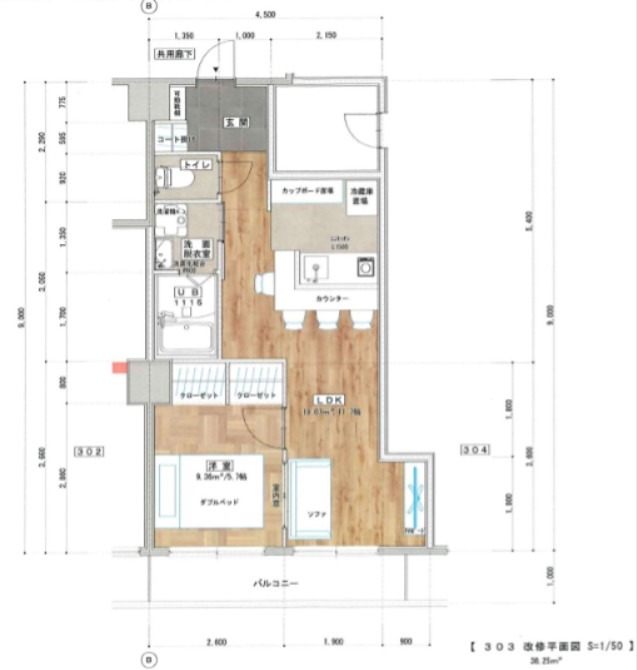
東京都 台東区にあるレクセルマンション上野松が谷の不動産詳細情報
| 参考査定価格 |
3,617万円〜4,367万円 (坪単価:191〜200万円/坪) |
|---|---|
| 住所 | 東京都台東区松が谷三丁目10-2 |
| アクセス |
日比谷線入谷駅 徒歩6分 日比谷線稲荷町駅 徒歩8分 日比谷線浅草駅 徒歩9分 |
| 築年月 | 2000年06月(築17年) |
| 共用施設 |
RC構造 / TVモニター付きインターホン / 宅配ボックス / 駐車場あり / 駐輪場あり
|
| 部屋の基本設備 |
インターネット利用可 / 追い焚き機能付き浴槽 / オートロック / システムキッチン / バス、トイレ別 / 浴室乾燥機 / ルーフバルコニー / エアコン完備
|
| 参考査定価格 |
|
レクセルマンション上野松が谷にそっくりな物件はこちら
台東区の賃貸物件をお探しの方はこちら
台東区の不動産会社一覧
理想の物件が見つからない方へ
理想の住まい探し、プロにまかせてみませんか?
・希望条件の物件が見つからない・ローンはどう組めばいいの?など
あなたのお悩みまるっと無料で相談に乗らせていただきます。
物件の売却を検討されている方へ
会員登録のご案内
新着物件・条件に合う物件をメールでお知らせします!
不動産会社のご担当社様へ
物件掲載随時受付中です。
掲載ご希望の方は、こちらよりお問い合わせください。
掲載ご希望の方は、こちらよりお問い合わせください。