アロウレイスフレア(東京都 府中市)
アロウレイスフレア掲載開始のお知らせ、ご希望条件の新着物件など、最新情報をお知らせいたします!
アロウレイスフレアは掲載が終了しております
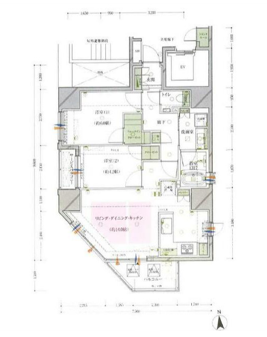
東京都 府中市にあるアロウレイスフレアの不動産詳細情報
| 住所 | 東京都府中市住吉町二丁目17-6 |
|---|---|
| アクセス |
京王線中河原駅 徒歩2分 |
| 築年月 | 2001年03月(築16年) |
アロウレイスフレアにそっくりな物件はこちら
府中市の賃貸物件をお探しの方はこちら
府中市の不動産会社一覧
理想の物件が見つからない方へ
理想の住まい探し、プロにまかせてみませんか?
・希望条件の物件が見つからない・ローンはどう組めばいいの?など
あなたのお悩みまるっと無料で相談に乗らせていただきます。
物件の売却を検討されている方へ
会員登録のご案内
新着物件・条件に合う物件をメールでお知らせします!
不動産会社のご担当社様へ
物件掲載随時受付中です。
掲載ご希望の方は、こちらよりお問い合わせください。
掲載ご希望の方は、こちらよりお問い合わせください。