シェモア加藤(東京都 文京区)
シェモア加藤掲載開始のお知らせ、ご希望条件の新着物件など、最新情報をお知らせいたします!
シェモア加藤は掲載が終了しております
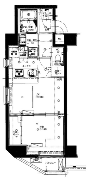
東京都 文京区にあるシェモア加藤の不動産詳細情報
| 参考査定価格 |
3,859万円〜5,423万円 (坪単価:173〜245万円/坪) |
|---|---|
| 住所 | 東京都文京区千石四丁目43-11 |
| アクセス |
都営三田線千石駅 徒歩5分 都営三田線巣鴨駅 徒歩6分 |
| 築年月 | 1996年03月(築21年) |
| 共用施設 |
RC構造 / TVモニター付きインターホン / 駐輪場あり
|
| 部屋の基本設備 |
インターネット利用可 / 追い焚き機能付き浴槽 / オートロック / システムキッチン / バス、トイレ別 / 床暖房 / 浴室乾燥機 / ルーフバルコニー
|
| 参考査定価格 |
|
シェモア加藤にそっくりな物件はこちら
文京区の賃貸物件をお探しの方はこちら
文京区の不動産会社一覧
理想の物件が見つからない方へ
理想の住まい探し、プロにまかせてみませんか?
・希望条件の物件が見つからない・ローンはどう組めばいいの?など
あなたのお悩みまるっと無料で相談に乗らせていただきます。
物件の売却を検討されている方へ
会員登録のご案内
新着物件・条件に合う物件をメールでお知らせします!
不動産会社のご担当社様へ
物件掲載随時受付中です。
掲載ご希望の方は、こちらよりお問い合わせください。
掲載ご希望の方は、こちらよりお問い合わせください。