ニックハイム大森北公園(東京都 大田区)
ニックハイム大森北公園掲載開始のお知らせ、ご希望条件の新着物件など、最新情報をお知らせいたします!
ニックハイム大森北公園は掲載が終了しております
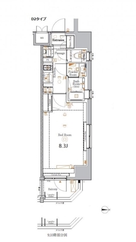
東京都 大田区にあるニックハイム大森北公園の不動産詳細情報
| 参考査定価格 |
2,538万円〜2,780万円 (坪単価:152〜157万円/坪) |
|---|---|
| 住所 | 東京都大田区大森北三丁目9-5 |
| アクセス |
京急本線大森海岸駅 徒歩5分 京急本線平和島駅 徒歩8分 京急本線大森駅 徒歩10分 |
| 築年月 | 1973年05月(築44年) |
| 共用施設 |
駐輪場あり
|
| 部屋の基本設備 |
インターネット利用可 / システムキッチン / バス、トイレ別 / ルーフバルコニー
|
| 参考査定価格 |
|
ニックハイム大森北公園にそっくりな物件はこちら
大田区の賃貸物件をお探しの方はこちら
大田区の不動産会社一覧
理想の物件が見つからない方へ
理想の住まい探し、プロにまかせてみませんか?
・希望条件の物件が見つからない・ローンはどう組めばいいの?など
あなたのお悩みまるっと無料で相談に乗らせていただきます。
物件の売却を検討されている方へ
会員登録のご案内
新着物件・条件に合う物件をメールでお知らせします!
不動産会社のご担当社様へ
物件掲載随時受付中です。
掲載ご希望の方は、こちらよりお問い合わせください。
掲載ご希望の方は、こちらよりお問い合わせください。