ハイムアイエスディ(東京都 荒川区)
ハイムアイエスディ掲載開始のお知らせ、ご希望条件の新着物件など、最新情報をお知らせいたします!
ハイムアイエスディは掲載が終了しております
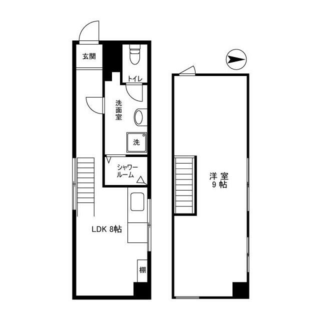
東京都 荒川区にあるハイムアイエスディの不動産詳細情報
| 住所 | 東京都荒川区東日暮里三丁目39-3 |
|---|---|
| アクセス |
常磐線三河島駅 徒歩4分 常磐線荒川区役所前駅 徒歩8分 常磐線新三河島駅 徒歩10分 常磐線荒川二丁目駅 徒歩10分 常磐線荒川一中前駅 徒歩10分 |
| 築年月 | 1994年02月(築23年) |
ハイムアイエスディにそっくりな物件はこちら
荒川区の賃貸物件をお探しの方はこちら
理想の物件が見つからない方へ
理想の住まい探し、プロにまかせてみませんか?
・希望条件の物件が見つからない・ローンはどう組めばいいの?など
あなたのお悩みまるっと無料で相談に乗らせていただきます。
物件の売却を検討されている方へ
会員登録のご案内
新着物件・条件に合う物件をメールでお知らせします!
不動産会社のご担当社様へ
物件掲載随時受付中です。
掲載ご希望の方は、こちらよりお問い合わせください。
掲載ご希望の方は、こちらよりお問い合わせください。