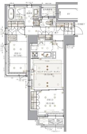
サンフラット紀尾井町(東京都 千代田区)
サンフラット紀尾井町掲載開始のお知らせ、ご希望条件の新着物件など、最新情報をお知らせいたします!
サンフラット紀尾井町は掲載が終了しております
東京都 千代田区にあるサンフラット紀尾井町の不動産詳細情報
| 住所 | 東京都千代田区紀尾井町3-32 |
|---|---|
| アクセス |
有楽町線麹町駅 徒歩4分 有楽町線赤坂見附駅 徒歩6分 有楽町線半蔵門駅 徒歩8分 |
| 築年月 | 1982年01月(築36年) |
サンフラット紀尾井町にそっくりな物件はこちら
千代田区の賃貸物件をお探しの方はこちら
千代田区の不動産会社一覧
理想の物件が見つからない方へ
理想の住まい探し、プロにまかせてみませんか?
・希望条件の物件が見つからない・ローンはどう組めばいいの?など
あなたのお悩みまるっと無料で相談に乗らせていただきます。
物件の売却を検討されている方へ
会員登録のご案内
新着物件・条件に合う物件をメールでお知らせします!
不動産会社のご担当社様へ
物件掲載随時受付中です。
掲載ご希望の方は、こちらよりお問い合わせください。
掲載ご希望の方は、こちらよりお問い合わせください。