朝日マンション五反田(東京都 品川区)
朝日マンション五反田掲載開始のお知らせ、ご希望条件の新着物件など、最新情報をお知らせいたします!
朝日マンション五反田は掲載が終了しております
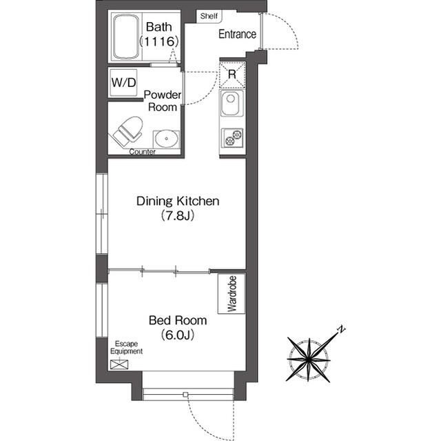
東京都 品川区にある朝日マンション五反田の不動産詳細情報
| 参考査定価格 |
2,586万円〜2,716万円 (坪単価:280〜291万円/坪) |
|---|---|
| 住所 | 東京都品川区西五反田二丁目28-4 |
| アクセス |
東急池上線大崎広小路駅 徒歩4分 東急池上線五反田駅 徒歩4分 東急池上線不動前駅 徒歩8分 |
| 築年月 | 2013年04月(築4年) |
| 共用施設 |
RC構造 / TVモニター付きインターホン / 宅配ボックス / 駐車場あり / 駐輪場あり
|
| 部屋の基本設備 |
BS/CS対応 / インターネット利用可 / 追い焚き機能付き浴槽 / オートロック / 温水洗浄便座 / システムキッチン / バス、トイレ別 / 浴室乾燥機 / ルーフバルコニー / エアコン完備
|
| 参考査定価格 |
|
朝日マンション五反田にそっくりな物件はこちら
品川区の賃貸物件をお探しの方はこちら
品川区の不動産会社一覧
理想の物件が見つからない方へ
理想の住まい探し、プロにまかせてみませんか?
・希望条件の物件が見つからない・ローンはどう組めばいいの?など
あなたのお悩みまるっと無料で相談に乗らせていただきます。
物件の売却を検討されている方へ
会員登録のご案内
新着物件・条件に合う物件をメールでお知らせします!
不動産会社のご担当社様へ
物件掲載随時受付中です。
掲載ご希望の方は、こちらよりお問い合わせください。
掲載ご希望の方は、こちらよりお問い合わせください。