兼六コーポ下北沢(東京都 世田谷区)
兼六コーポ下北沢掲載開始のお知らせ、ご希望条件の新着物件など、最新情報をお知らせいたします!
兼六コーポ下北沢は掲載が終了しております
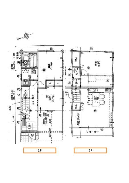
東京都 世田谷区にある兼六コーポ下北沢の不動産詳細情報
| 住所 | 東京都世田谷区代田五丁目1-18 |
|---|---|
| アクセス |
小田急小田原線世田谷代田駅 徒歩4分 小田急小田原線下北沢駅 徒歩5分 小田急小田原線新代田駅 徒歩6分 |
| 築年月 | 2007年12月(築10年) |
兼六コーポ下北沢にそっくりな物件はこちら
世田谷区の賃貸物件をお探しの方はこちら
世田谷区の不動産会社一覧
理想の物件が見つからない方へ
理想の住まい探し、プロにまかせてみませんか?
・希望条件の物件が見つからない・ローンはどう組めばいいの?など
あなたのお悩みまるっと無料で相談に乗らせていただきます。
物件の売却を検討されている方へ
会員登録のご案内
新着物件・条件に合う物件をメールでお知らせします!
不動産会社のご担当社様へ
物件掲載随時受付中です。
掲載ご希望の方は、こちらよりお問い合わせください。
掲載ご希望の方は、こちらよりお問い合わせください。