TOP青砥(東京都 葛飾区)
TOP青砥掲載開始のお知らせ、ご希望条件の新着物件など、最新情報をお知らせいたします!
TOP青砥は掲載が終了しております
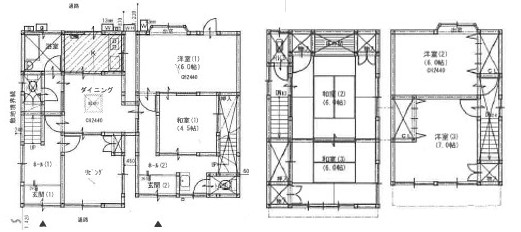
東京都 葛飾区にあるTOP青砥の不動産詳細情報
| 住所 | 東京都葛飾区青戸二丁目21-17 |
|---|---|
| アクセス |
京成本線青砥駅 徒歩5分 京成本線京成高砂駅 徒歩10分 |
| 築年月 | 1986年09月(築31年) |
TOP青砥にそっくりな物件はこちら
葛飾区の賃貸物件をお探しの方はこちら
理想の物件が見つからない方へ
理想の住まい探し、プロにまかせてみませんか?
・希望条件の物件が見つからない・ローンはどう組めばいいの?など
あなたのお悩みまるっと無料で相談に乗らせていただきます。
物件の売却を検討されている方へ
会員登録のご案内
新着物件・条件に合う物件をメールでお知らせします!
不動産会社のご担当社様へ
物件掲載随時受付中です。
掲載ご希望の方は、こちらよりお問い合わせください。
掲載ご希望の方は、こちらよりお問い合わせください。