レジディア新御徒町(東京都 台東区)
レジディア新御徒町掲載開始のお知らせ、ご希望条件の新着物件など、最新情報をお知らせいたします!
レジディア新御徒町は掲載が終了しております
東京都 台東区にあるレジディア新御徒町の不動産詳細情報
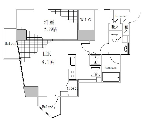
| 住所 | 東京都台東区元浅草一丁目21-5 |
|---|---|
| アクセス |
銀座線稲荷町駅 徒歩3分 銀座線新御徒町駅 徒歩4分 銀座線田原町駅 徒歩10分 銀座線上野駅 徒歩10分 銀座線御徒町駅 徒歩10分 |
| 築年月 | 2007年03月(築10年) |
レジディア新御徒町にそっくりな物件はこちら
台東区の賃貸物件をお探しの方はこちら
台東区の不動産会社一覧
理想の物件が見つからない方へ
理想の住まい探し、プロにまかせてみませんか?
・希望条件の物件が見つからない・ローンはどう組めばいいの?など
あなたのお悩みまるっと無料で相談に乗らせていただきます。
物件の売却を検討されている方へ
会員登録のご案内
新着物件・条件に合う物件をメールでお知らせします!
不動産会社のご担当社様へ
物件掲載随時受付中です。
掲載ご希望の方は、こちらよりお問い合わせください。
掲載ご希望の方は、こちらよりお問い合わせください。