オーパスⅡ(東京都 大田区)
オーパスⅡ掲載開始のお知らせ、ご希望条件の新着物件など、最新情報をお知らせいたします!
オーパスⅡは掲載が終了しております
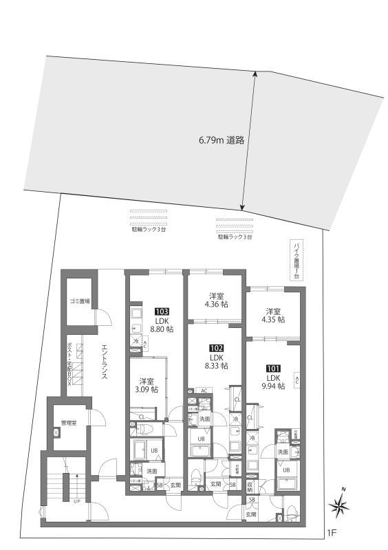
東京都 大田区にあるオーパスⅡの不動産詳細情報
| 参考査定価格 |
2,191万円 (坪単価:241万円/坪) |
|---|---|
| 住所 | 東京都大田区西蒲田七丁目8-10 |
| アクセス |
京浜東北・根岸線蒲田駅 徒歩4分 京浜東北・根岸線蓮沼駅 徒歩6分 |
| 築年月 | 2007年10月(築10年) |
| 参考査定価格 |
|
オーパスⅡにそっくりな物件はこちら
大田区の賃貸物件をお探しの方はこちら
大田区の不動産会社一覧
理想の物件が見つからない方へ
理想の住まい探し、プロにまかせてみませんか?
・希望条件の物件が見つからない・ローンはどう組めばいいの?など
あなたのお悩みまるっと無料で相談に乗らせていただきます。
物件の売却を検討されている方へ
会員登録のご案内
新着物件・条件に合う物件をメールでお知らせします!
不動産会社のご担当社様へ
物件掲載随時受付中です。
掲載ご希望の方は、こちらよりお問い合わせください。
掲載ご希望の方は、こちらよりお問い合わせください。