セントラルビル(東京都 中央区)
セントラルビル掲載開始のお知らせ、ご希望条件の新着物件など、最新情報をお知らせいたします!
セントラルビルは掲載が終了しております
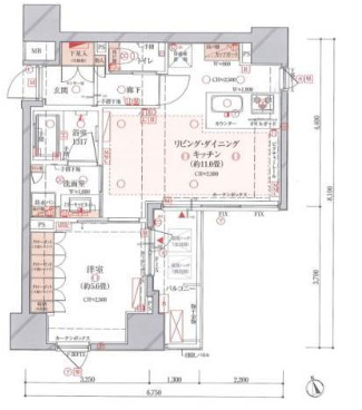
東京都 中央区にあるセントラルビルの不動産詳細情報
| 住所 | 東京都中央区日本橋小伝馬町7-12 |
|---|---|
| アクセス |
日比谷線小伝馬町駅 徒歩2分 日比谷線馬喰町駅 徒歩5分 日比谷線岩本町駅 徒歩6分 日比谷線新日本橋駅 徒歩8分 日比谷線神田駅 徒歩10分 日比谷線人形町駅 徒歩10分 日比谷線浅草橋駅 徒歩10分 |
| 築年月 | 1974年08月(築43年) |
セントラルビルにそっくりな物件はこちら
中央区の賃貸物件をお探しの方はこちら
中央区の不動産会社一覧
理想の物件が見つからない方へ
理想の住まい探し、プロにまかせてみませんか?
・希望条件の物件が見つからない・ローンはどう組めばいいの?など
あなたのお悩みまるっと無料で相談に乗らせていただきます。
物件の売却を検討されている方へ
会員登録のご案内
新着物件・条件に合う物件をメールでお知らせします!
不動産会社のご担当社様へ
物件掲載随時受付中です。
掲載ご希望の方は、こちらよりお問い合わせください。
掲載ご希望の方は、こちらよりお問い合わせください。