志茂文化アパート(東京都 北区)
志茂文化アパート掲載開始のお知らせ、ご希望条件の新着物件など、最新情報をお知らせいたします!
志茂文化アパートは掲載が終了しております
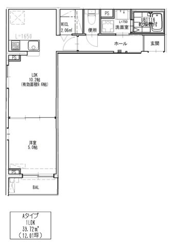
東京都 北区にある志茂文化アパートの不動産詳細情報
| 住所 | 東京都北区志茂二丁目54-5 |
|---|---|
| アクセス |
南北線赤羽岩淵駅 徒歩7分 南北線志茂駅 徒歩8分 南北線赤羽駅 徒歩9分 |
| 築年月 | 1969年03月(築48年) |
志茂文化アパートにそっくりな物件はこちら
北区の賃貸物件をお探しの方はこちら
理想の物件が見つからない方へ
理想の住まい探し、プロにまかせてみませんか?
・希望条件の物件が見つからない・ローンはどう組めばいいの?など
あなたのお悩みまるっと無料で相談に乗らせていただきます。
物件の売却を検討されている方へ
会員登録のご案内
新着物件・条件に合う物件をメールでお知らせします!
不動産会社のご担当社様へ
物件掲載随時受付中です。
掲載ご希望の方は、こちらよりお問い合わせください。
掲載ご希望の方は、こちらよりお問い合わせください。