アレ・ベルト下丸子MB15(東京都 大田区)
アレ・ベルト下丸子MB15掲載開始のお知らせ、ご希望条件の新着物件など、最新情報をお知らせいたします!
アレ・ベルト下丸子MB15は掲載が終了しております
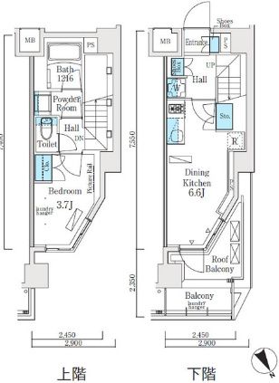
東京都 大田区にあるアレ・ベルト下丸子MB15の不動産詳細情報
| 参考査定価格 |
1,495万円〜1,639万円 (坪単価:198〜216万円/坪) |
|---|---|
| 住所 | 東京都大田区下丸子四丁目18-8 |
| アクセス |
東急多摩川線下丸子駅 徒歩5分 東急多摩川線鵜の木駅 徒歩9分 |
| 築年月 | 2012年02月(築5年) |
| 共用施設 |
RC構造 / TVモニター付きインターホン / 宅配ボックス / 駐車場あり / 駐輪場あり
|
| 部屋の基本設備 |
BS/CS対応 / インターネット利用可 / 追い焚き機能付き浴槽 / オートロック / システムキッチン / バス、トイレ別 / ペット相談可 / 浴室乾燥機 / ルーフバルコニー / エアコン完備
|
| 参考査定価格 |
|
アレ・ベルト下丸子MB15にそっくりな物件はこちら
大田区の賃貸物件をお探しの方はこちら
大田区の不動産会社一覧
理想の物件が見つからない方へ
理想の住まい探し、プロにまかせてみませんか?
・希望条件の物件が見つからない・ローンはどう組めばいいの?など
あなたのお悩みまるっと無料で相談に乗らせていただきます。
物件の売却を検討されている方へ
会員登録のご案内
新着物件・条件に合う物件をメールでお知らせします!
不動産会社のご担当社様へ
物件掲載随時受付中です。
掲載ご希望の方は、こちらよりお問い合わせください。
掲載ご希望の方は、こちらよりお問い合わせください。