プロヴァンスハイム(東京都 武蔵野市)
プロヴァンスハイム掲載開始のお知らせ、ご希望条件の新着物件など、最新情報をお知らせいたします!
プロヴァンスハイムは掲載が終了しております
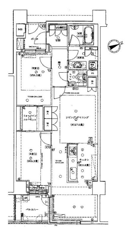
東京都 武蔵野市にあるプロヴァンスハイムの不動産詳細情報
| 参考査定価格 |
939万円〜986万円 (坪単価:153〜163万円/坪) |
|---|---|
| 住所 | 東京都武蔵野市吉祥寺南町五丁目9-8 |
| アクセス |
中央線(快速)西荻窪駅 徒歩8分 |
| 築年月 | 1995年02月(築22年) |
| 共用施設 |
駐輪場あり
|
| 部屋の基本設備 |
BS/CS対応 / ルーフバルコニー / エアコン完備 / バス、トイレ別
|
プロヴァンスハイムにそっくりな物件はこちら
武蔵野市の賃貸物件をお探しの方はこちら
理想の物件が見つからない方へ
理想の住まい探し、プロにまかせてみませんか?
・希望条件の物件が見つからない・ローンはどう組めばいいの?など
あなたのお悩みまるっと無料で相談に乗らせていただきます。
物件の売却を検討されている方へ
会員登録のご案内
新着物件・条件に合う物件をメールでお知らせします!
不動産会社のご担当社様へ
物件掲載随時受付中です。
掲載ご希望の方は、こちらよりお問い合わせください。
掲載ご希望の方は、こちらよりお問い合わせください。